時間:2016-12-26 17:11:14作者:admin
重磅:新一代E區12月30日開盤銷售
新一代E區1#、2#、3#、5#樓現已五證齊全,首期銷售商品房將于2016年12月30日開盤,戶型面積由86㎡到138㎡。12月30、31日為排號時間,2017年1月1日開始辦理購房手續。關注“河北建新建筑集團”微信公眾號hebeijxjt。點擊“在售樓盤”,了解項目詳細信息。
了解更多詳情,可掃描以下二維碼關注我們,
獲得更多最新信息。
↓ ↓ ↓

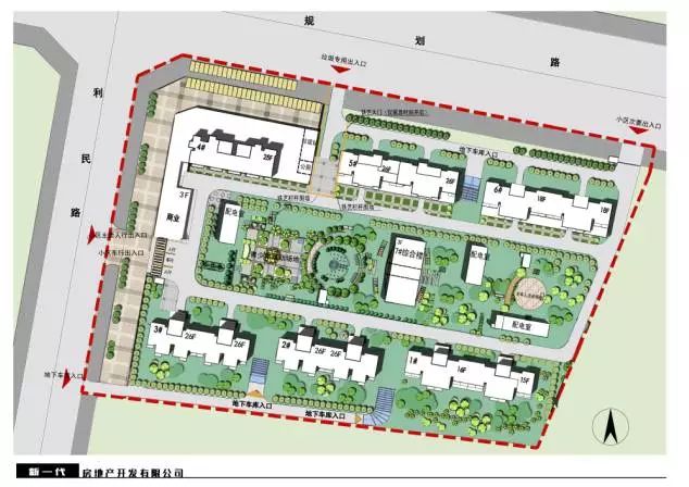
由保定新一代房地產開發有限公司開發的新一代E區位于保定市利民街東,規劃太行路南,占地59.94畝,開發總建筑面積約13.5萬平米,其中六棟住宅樓,一棟綜合樓。新一代E區1、2、3、5號樓現已五證齊全,近期即將開盤,最新樓盤動態信息請關注“河北建新建筑集團”微信公眾號hebeijxjt。

新一代E區規劃圖
鳥瞰圖、單體樓效果圖
﹀
﹀
﹀
戶型圖
﹀
﹀
﹀
施工現場圖及銷售中心圖
﹀
﹀
﹀
公告
近日,保定新一代房地產開發有限公司銷售中心接到部分市民反映:社會上有某些機構或個人以我公司代理分銷為名,預收新一代E區商品房訂房名額費。我公司在此鄭重聲明保定新一代房地產開發有限公司開發建設的位于利民路的新一代E區項目,從未委托任何中介和個人代為代理銷售。提醒廣大市民不要上當受騙,一切預售信息均以保定新一代房地產開發有限公司銷售中心通知為準。

項目位置:保定市蓮池區利民街以東,規劃太行路以南。
乘車路線:
在市內可以乘坐36、39、64、107路公交車到農資市場下車即可到達新一代E區,交通非常便利。

銷售中心咨詢電話:5953777/888/999
目前電話正在辦理移機手續,暫時無法接聽,
請于2016年12月29日后撥打.
目前咨詢電話為:
3326666
3337618
17732288539

版權所有:河北建新集團 冀ICP備2022012438號-1
技術支持:保定優勢傳媒